• Welcome to The Building Code Forum

    Your premier resource for building code knowledge.

    This forum remains free to the public thanks to the generous support of our Sawhorse Members and Corporate Sponsors. Their contributions help keep this community thriving and accessible.

    Want enhanced access to expert discussions and exclusive features? Learn more about the benefits here.

    Ready to upgrade? Log in and upgrade now.

Help assessing if these corridors need to be rated.

Ryan Schultz

SAWHORSE
Joined
Apr 2, 2012
Messages
285
Location
Madison, WI
I'm working on a 5300sf unsprinklered, Type VB (B) & (S-1) Repair garage and car dealership.. The occupancy count is 49.

Question: per TABLE 1020.1, do the corridors needed to be rated for 1hr?

https://up.codes/viewer/wisconsin/ibc-2015/chapter/10/means-of-egress#table_1020.1

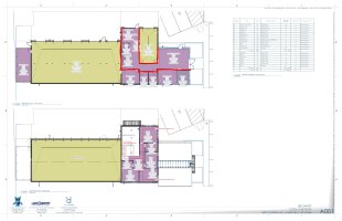
The corridor loads on the 1st floor are greater than 30 occupants so it looks like they need to be rated. If so, I'm assuming the corridors, highlighted in red, will need to be rated.

I question my assessment, however, since it's seems strange that such a small building would need rated corridors.

...

If the 1st floor corridors walls need to be rated, I'm assuming the ones on the mezznaine do not, as that corridor accommodates an occupant load less than 30.

pdf: https://www.dropbox.com/scl/fi/vbzd...FETY.pdf?rlkey=eod145padp6d3da6btrqdr11f&dl=1
A001 - LIFE SAFETY.jpg
 
I'm assuming the corridors, highlighted in red, will need to be rated.
Not sure how the 2015 IBC defines “corridor,” but I would not have considered the area traced in red to a corridor, in this “corridor” you have occupied spaces (office, waiting area, and service desk,) it is not used exclusively for egress travel.

2021 IBC Definition of “Corridor” (emphasis added)
An enclosed exit access component that defines and provides a path of egress travel.

I'm assuming the ones on the mezznaine do not, as that corridor accommodates an occupant load less than 30.
Again, I would not consider the space you are referring to as a “corridor” to be a corridor because it is open to a space below that is not a corridor.
 
what if that corridor didn't go through intervening spaces?
If the blue area in the top sketch is separated from the adjacent spaces with full-height walls (not partial height partitions) that enclose the area, it would be a corridor.

Back to your first post…

The corridor loads on the 1st floor are greater than 30 occupants so it looks like they need to be rated…I question my assessment…
Your assessment is correct that the corridor, because it has an occupant load greater than 30 in a non-sprinklered building, would need to have the 1-hour rating.

however, since it's seems strange that such a small building would need rated corridors.
It’s helpful to not think in terms of building size (area) but in number of occupants, and someone somehow determined that 30 occupants was as big as they thought it should be without a rated corridor or sprinklers.

the ones on the mezznaine
I’m not seeing anything on the second floor plan that looks like a mezzanine. Doesn’t really matter, you don’t have anything called out as a mezzanine so there shouldn’t be any confusion during plan review.
 
Most of what you have marked as corridor is corridor. I've circled in purple what I think is actually "corridor" as defined in the code:

1761698068918.png

I am concerned with the open stair as the only means of egress from the second story. The two remote corners are marked as 65 feet and 75 feet
common path of travel," but how is that measured and where does it terminate? An open stair is an exit access stair, so the exit access distance isn't measured to the bottom of the stair, it's measured to the exit door on the lower level. And at the stairs, the travel distance is measured along the line of the stair nosings, so you have to multiply the plan dimension by a factor of roughly 1.4 (depending on the rise:run ratio of the stair) to get the actual travel distance. I suspect you may not actually qualify for the second story to have only a single, open stair for egress.
 
Back
Top