• Welcome to The Building Code Forum

    Your premier resource for building code knowledge.

    This forum remains free to the public thanks to the generous support of our Sawhorse Members and Corporate Sponsors. Their contributions help keep this community thriving and accessible.

    Want enhanced access to expert discussions and exclusive features? Learn more about the benefits here.

    Ready to upgrade? Log in and upgrade now.

How to address 1-hour fire-rated stairway within 5′ of property line in San Diego?

samersalman

REGISTERED
Joined
Oct 23, 2025
Messages
1
Location
San Diego, CA
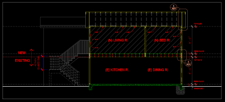
I got a plan-check comment from San Diego DSD saying:

“The south side of the stairway is less than 5 ft. from the property line so it should be 1-hour fire rated. The columns of the stairway that are within 5 ft. from the property line shall be 1-hour fire rated. Provide the 1-hour rated stairway detail.”
What’s the correct way to address and draw this?
Do I need to show a UL-listed wall assembly (like UL U415) along the stair side facing the property line and how to do this?
Also, how do I show the underside of the stair for fire protection in the drawing?

This is for a residential project in San Diego, CA under CRC R302.1(1).


1761695055983.png
 
What is your role in the project? if you are the registered design professional you should consult with a drywall manufacturer listed designs and use them to provide the rated assembly that meets the 1 hour requirements including the underside of the stairs
 
Welcome to the forum.
Your plan checker should,d be providing you specific code citations to aid you in your response.
Look at CRC Table R302.1. It refers you CBC 703.3 for wall construction techniques. In turn, that will refer you to the gypsum association manual and UL tests.
The CBC and CRC are available to view for free at upcodes.com.

I can’t tell from the section you provided where is the property line relative to the stair, nor can I tell if your stair is an interior stair vs. exterior stair. I can’t tell what your stair is made from, and if it’s an exterior stair, you have not proposed any wall finish (stucco, siding, etc.) that helps us provide a more specific solution.

Also, have you checked to see if San Diego will require you to fire sprinkler the house? If they do, then sprinklers may substitute for fire rated construction under certain conditions - - see CRC R302.1.
 
Back
Top